13, Elgin, Bradford, Bradford West Gwillimbury, Residential Freehold

MLS® Number N12683066
For Sale   $ 699,900
  • 3 beds | 
  • 3 baths | 
  • 1100-1500 SQFT
Kate Naccarato
Kate Naccarato Sales Representative 416-779-6085
Add to favourites

Description

Residential Freehold Att/Row/Townhouse For Sale.

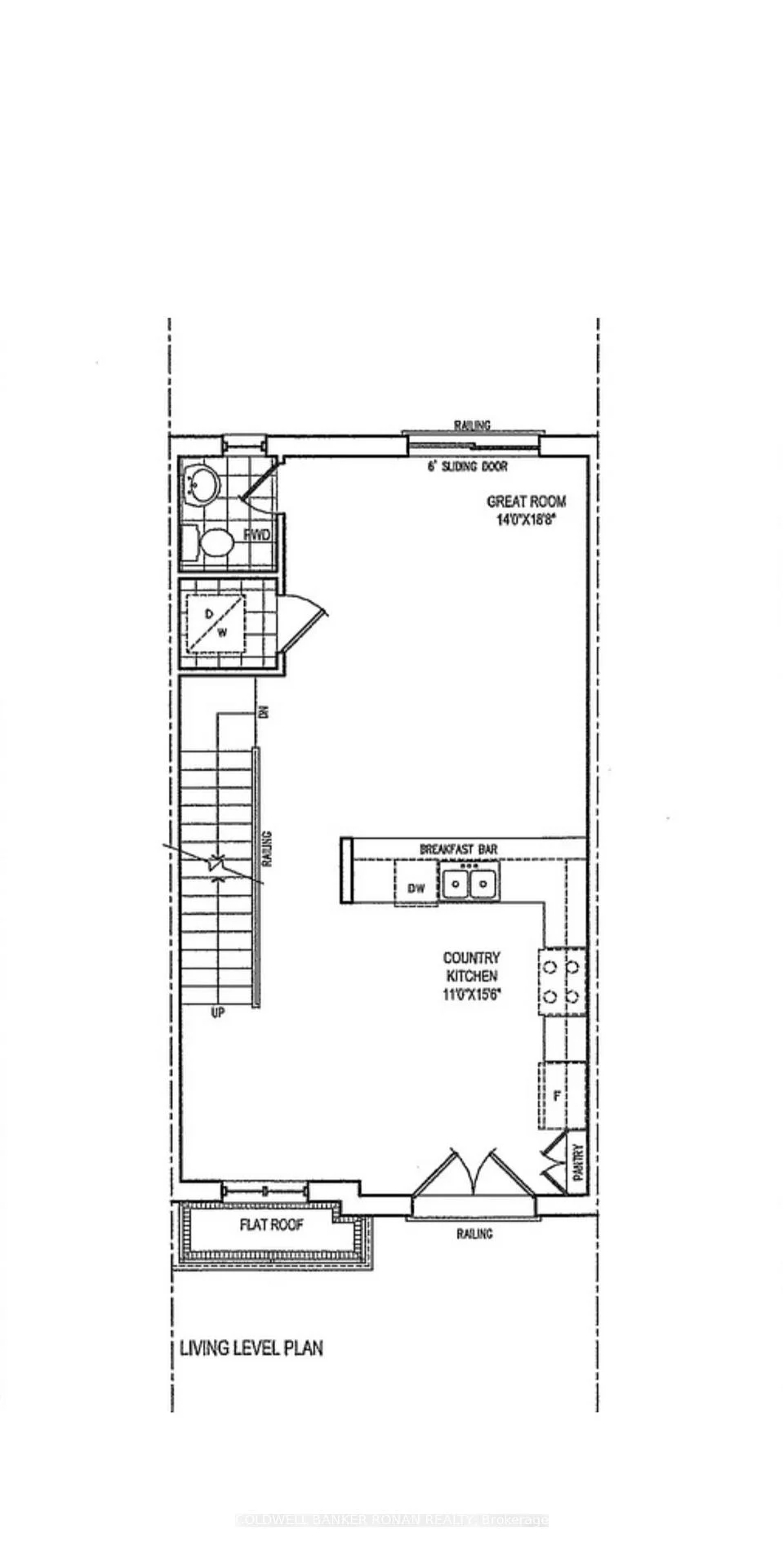
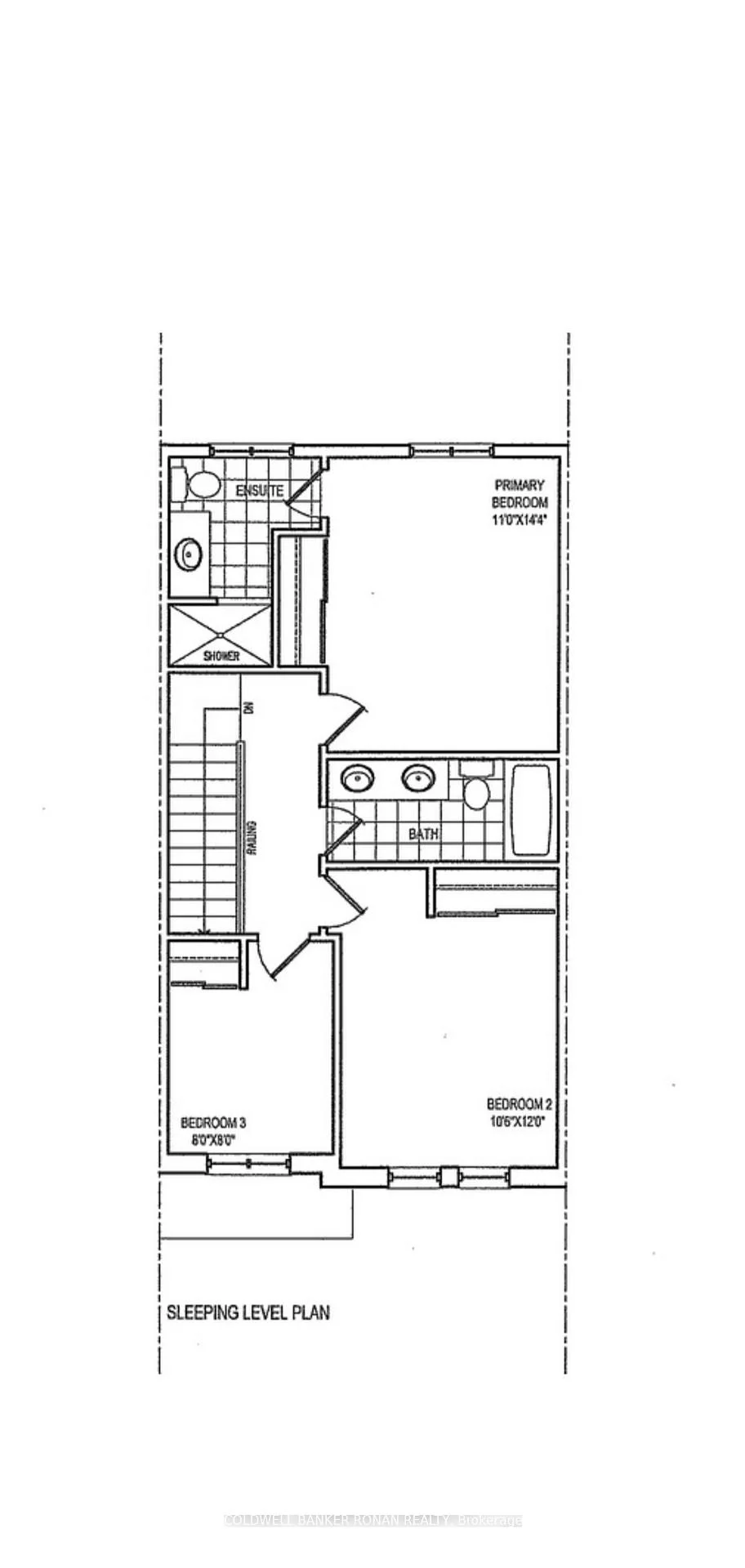
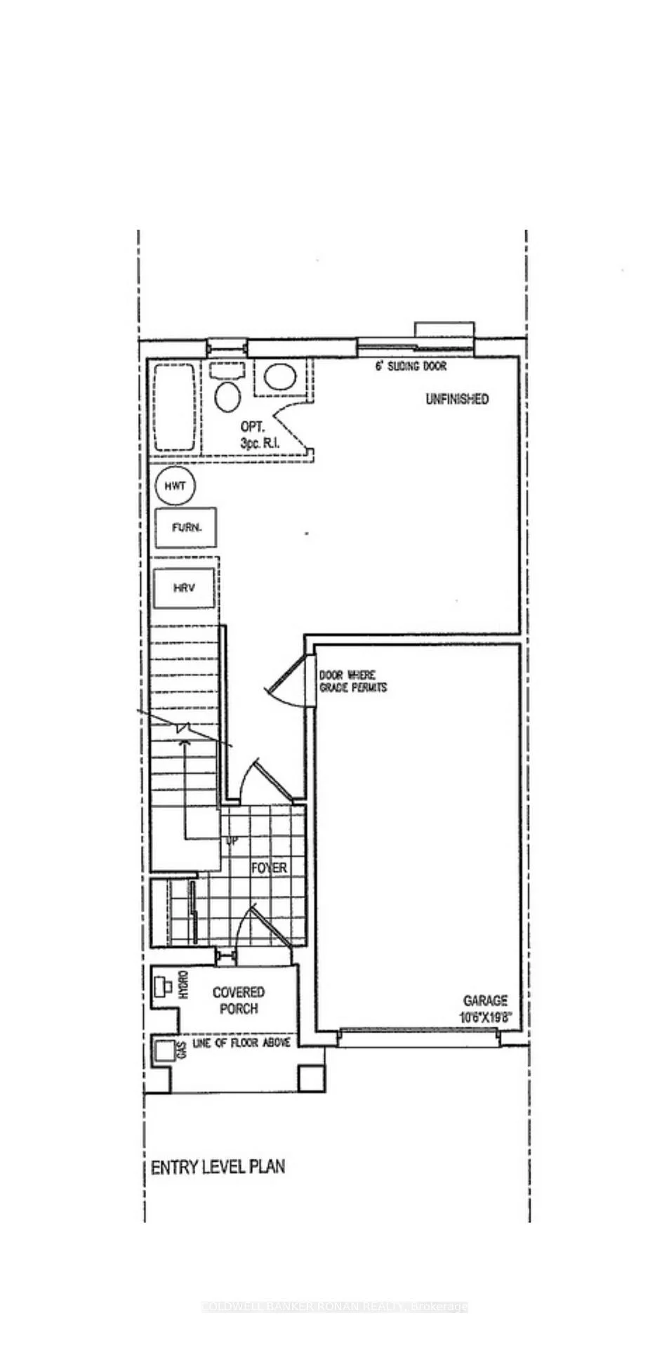
Welcome to this stunning all-brick "Daisy Design" built by FirstView Homes, offering 1,464 sq. ft. of thoughtfully designed living space. This home features a walk-out basement, providing endless potential for future customization.The spacious open-concept main floor is perfect for both comfortable living and entertaining. Enjoy a bright and airy atmosphere with 9' smooth ceilings, rich hardwood flooring, and a charming Juliet balcony that fills the space with natural light.The chef-inspired kitchen is a standout, boasting elegant quartz countertops, an extended breakfast bar, and tall upper cabinetry-ideal for both meal preparation and storage.Upstairs, a stained oak staircase leads to three generously sized bedrooms, perfect for growing families or guests.Located in a boutique enclave of freehold townhomes in the heart of Bradford, this pre-construction home is anticipated to be ready by Fall 2026. Enjoy convenient access to public transit, Hwy 400, local schools, and the GO Train-just a short 6-minute drive away.There's still time to select your interior finishes, allowing you to personalize your home to suit your style. Additional other interior and end-unit plans are also available.Note: This is NOT an assignment sale, giving you peace of mind throughout the process. Don't miss out on this exceptional opportunity-book a showing today!

Property Features: Library, Place Of Worship, School, Rec./Commun.Centre, Public Transit

Interior Features: None

Cross Street: Holland St - West Park

Direction Faces: South

Key Facts

  • Days on: 3 days
  • Mls Status: Sold Conditional
  • Bedrooms Total: 3
  • Bedrooms Above Grade: 3
  • Bathrooms Total Integer: 3
  • Lot Width: 18.00
  • Kitchens Total: 1
  • Parking Total: 3
  • Parking Spaces: 2
  • Parking Features: Mutual
  • Garage Type: Attached
  • Heat Source: Gas
  • Heat Type: Forced Air
  • Cooling: None
  • Living Area Range: 1100-1500 Square Feet

Location 13, Elgin, Bradford, Bradford West Gwillimbury

Search by Neighbourhoods

Kate Naccarato
Sales Representative 416-779-6085