20, Jeremy, Northgate, Brampton, Residential Freehold

MLS® Number W12860888
For Sale   $ 975,000
  • 5 beds | 
  • 4 baths | 
  • 2000-2500 SQFT
Kate Naccarato
Kate Naccarato Sales Representative 416-779-6085
Add to favourites

Description

Residential Freehold Detached For Sale.

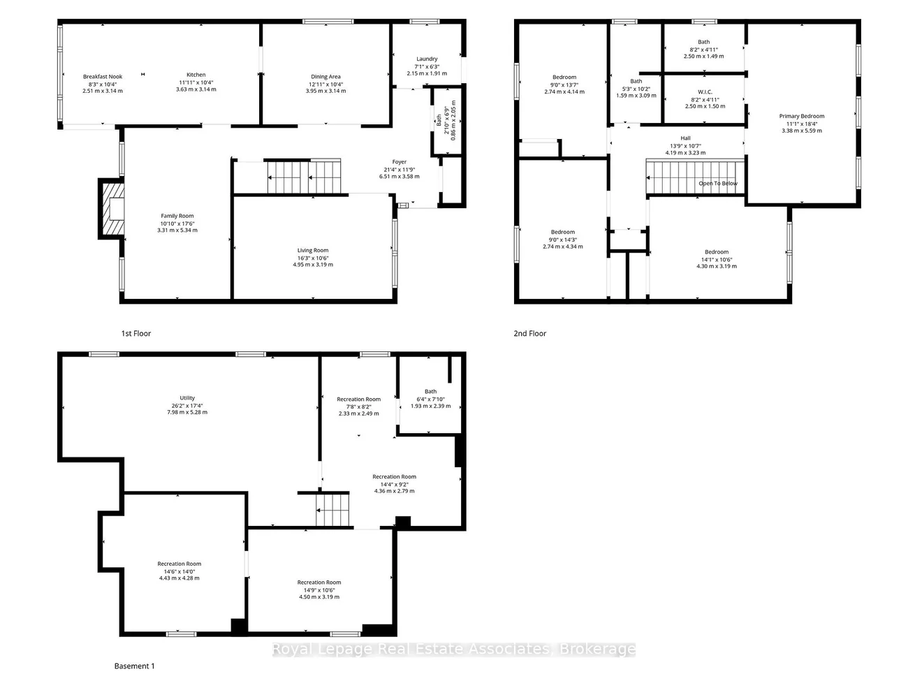
Welcome to this lovingly maintained 2-storey detached home, tucked away on a quiet cul-de-sac with no rear neighbours, where pride of ownership shines through years of thoughtful updates & meticulous care. Boasting 4+1 bedrooms, 4 bathrooms & parking for up to 5 vehicles. The main level features hardwood flooring (2017), a welcoming foyer with a closet & a 2-piece bathroom & a main floor laundry room with sink, cabinetry & direct garage access. Bright & spacious, the living room with custom California shutters is a versatile space for an office, extra seating for gatherings, or a cozy lounge area. The renovated kitchen (2019) is a standout with quartz countertops, stainless steel appliances, ceramic backsplash, under-cabinet lighting, soft-close drawers & cabinetry doors & a bright breakfast area with a walkout to the deck. Adjacent to the kitchen, the family room offers a cozy wood fireplace & a private dining area. Upstairs, four spacious bedrooms with updated carpeting(2021) & an updated stair railing (2021) include a primary suite with a walk-in closet & a private 4-piece ensuite, while bedrooms 2, 3 & 4 each have double closets & share a full 4-piece bathroom. The fully renovated basement (2021) with potential for an in-law suite has it all. With waterproofing (2020/2025) & 2 egress windows (2022), excellent flexibility with a rec room, fifth bedroom, kitchenette with eating area, 4-piecebathroom & ample storage. The fully fenced, updated backyard with a newer patio (2021) backs onto the Don Doan trail. Ample parking is available with a triple-wide driveway & a double car garage. Additional exterior upgrades include a sealed driveway (2025), upgraded insulated garage/front door & newer soffits, eavestroughs (2020) & roof. Walking distance to trails & local favourites like the Santa Claus Parade & Canada Day, this home is also close to parks, a wellness centre, public transit, schools, shopping, the hospital, Hwy 410, library, places of worship & more.

Property Features: Park, Hospital, Cul de Sac/Dead End, School, Library, Place Of Worship

Interior Features: Central Vacuum, Storage, Water Heater

Cross Street: Williams Pkwy/Torbram Rd

Direction Faces: South

Key Facts

  • Days on: 5 days
  • Mls Status: New
  • Bedrooms Total: 5
  • Bedrooms Below Grade: 1
  • Bedrooms Above Grade: 4
  • Den / Family Room: Yes
  • Bathrooms Total Integer: 4
  • Lot Width: 38.22
  • Kitchens Total: 2
  • Parking Total: 5
  • Parking Spaces: 3
  • Parking Features: Private Triple
  • Garage Type: Attached
  • Heat Source: Gas
  • Heat Type: Forced Air
  • Cooling: Central Air
  • Living Area Range: 2000-2500 Square Feet

Location 20, Jeremy, Northgate, Brampton

Search by Neighbourhoods

Kate Naccarato
Sales Representative 416-779-6085