89, Meadow Vista, Holland Landing, East Gwillimbury, Residential Freehold

MLS® Number N12905000
For Sale   $ 724,900
  • 3 beds | 
  • 3 baths | 
  • 1100-1500 SQFT
Kate Naccarato
Kate Naccarato Sales Representative 416-779-6085
Add to favourites

Description

Residential Freehold Att/Row/Townhouse For Sale.

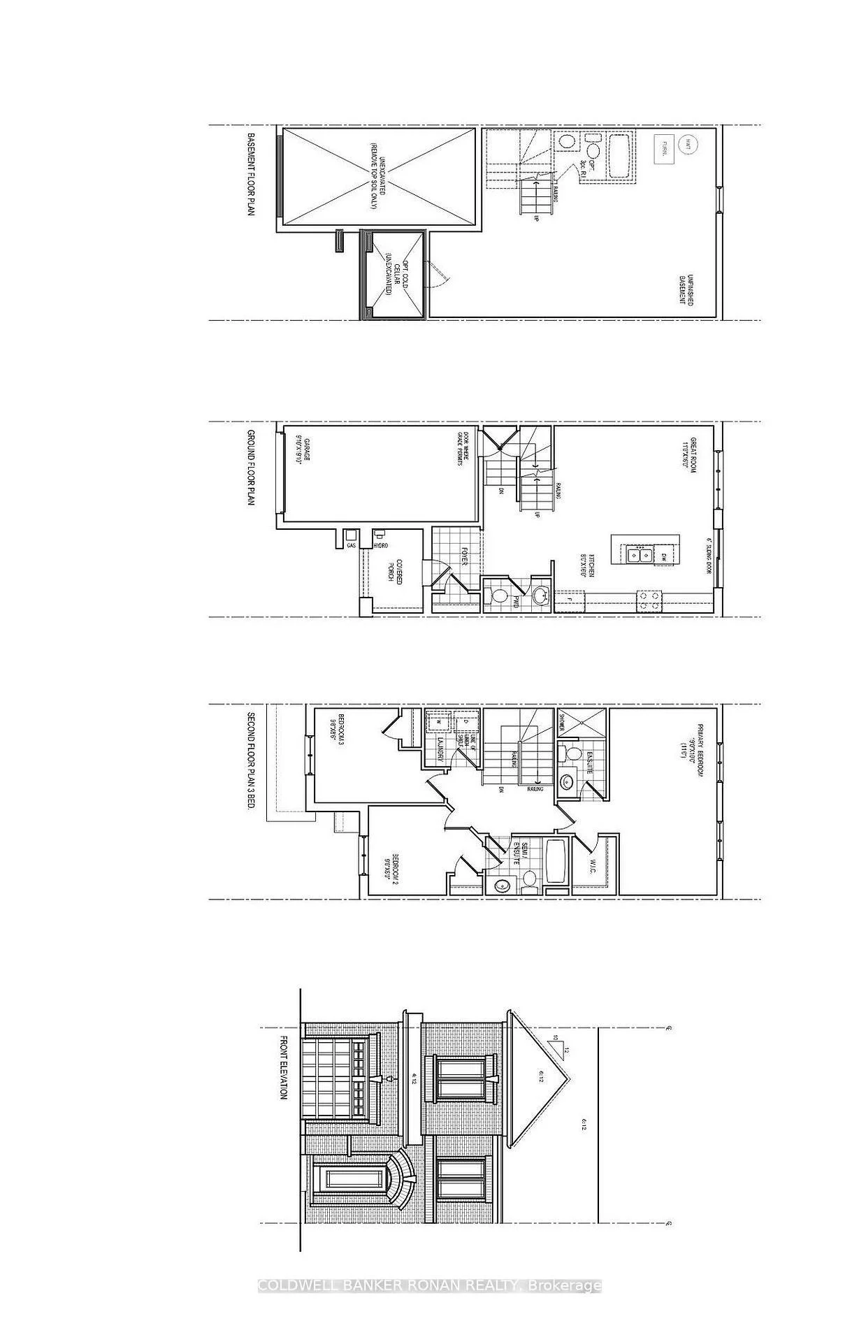
Perfect Opportunity for First-Time Buyers - Take Advantage of the Approved GST/HST Incentive! Discover this beautifully crafted all-brick Energy Star* freehold townhome nestled in a sought-after family-friendly community. Offering 1,355 sq. ft. of thoughtfully designed living space, this stunning 3-bedroom, 2.5 -bathroom home perfectly blends modern style, comfort, and everyday functionality. With late Fall 2026 occupancy, buyers have the exciting opportunity to select finishes and personalize their home to match their unique style. Step inside to a bright, open-concept main floor featuring 9' ceilings, elegant hardwood flooring, and a chef-inspired kitchen designed for both daily living and entertaining. The kitchen showcases tall upper cabinetry, quartz countertops, a spacious island, and an extended breakfast bar-perfect for gathering with family and friends. A 6' patio door leads directly to the backyard, creating seamless indoor-outdoor living. An elegant stained hardwood staircase with modern Black metal pickets leads to the second floor where you'll find 3 bedrooms, two full bathrooms, and a conveniently located laundry room. The unfinished basement with cold cellar offers excellent storage and future potential to finish. Built by FirstView Homes, known for their quality craftsmanship and attention to detail, this is a home you can purchase with confidence. Community Highlights: Close to shopping, dining, and everyday amenities, Walking distance to parks and trailways. Access to major routes and a 7-minute drive to the GO Station. Additional models and floor plans are also available. First-time buyers may also qualify for the GST/HST New Housing Rebate under the Government of Canada's legislation. HST is in addition to the purchase price. Don't miss the chance to join this growing community-your new home awaits

Interior Features: None

Cross Street: Dogwood Blvd & Holland Vista Street

Direction Faces: North

Key Facts

  • Days on: 1 days
  • Mls Status: New
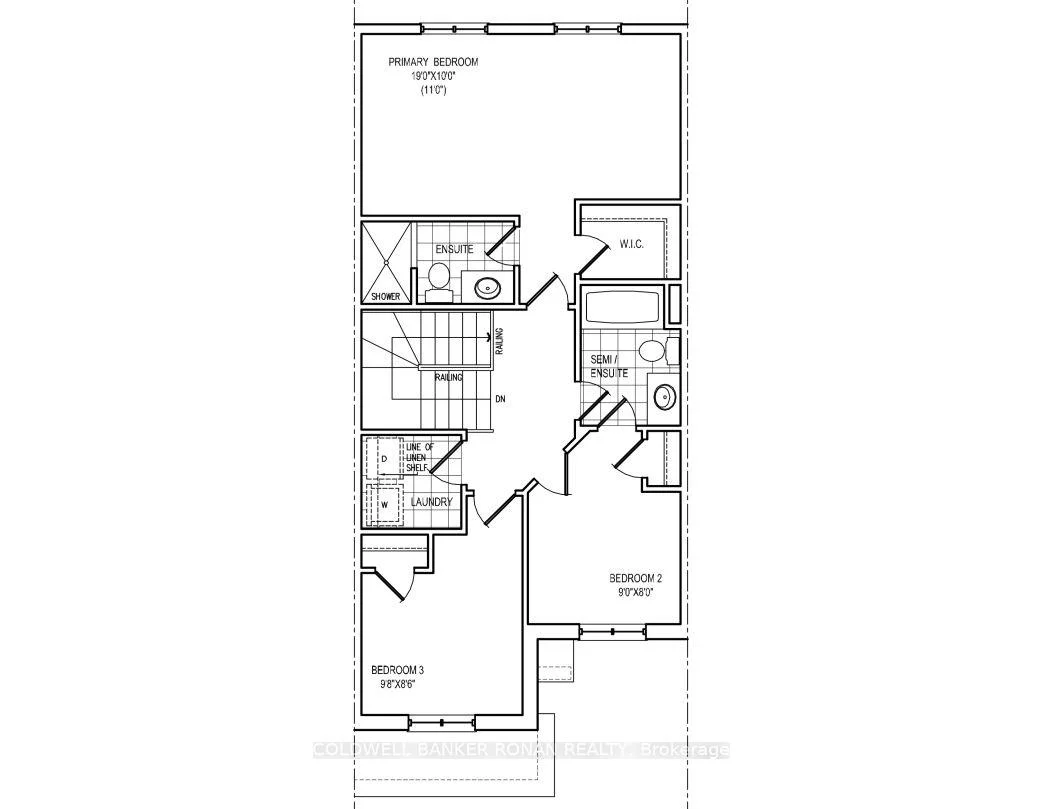
  • Bedrooms Total: 3
  • Bedrooms Above Grade: 3
  • Bathrooms Total Integer: 3
  • Lot Width: 6.10
  • Kitchens Total: 1
  • Parking Total: 3
  • Parking Spaces: 2
  • Parking Features: Mutual
  • Garage Type: Built-In
  • Heat Source: Gas
  • Heat Type: Forced Air
  • Cooling: None
  • Living Area Range: 1100-1500 Square Feet

Location 89, Meadow Vista, Holland Landing, East Gwillimbury

Search by Neighbourhoods

Kate Naccarato
Sales Representative 416-779-6085