3150, Lloydtown, Rural King, King, Commercial

MLS® Number N12839206
For Sale   $ 2,700,000
  • 11554 SQFT
Kate Naccarato
Kate Naccarato Sales Representative 416-779-6085
Add to favourites

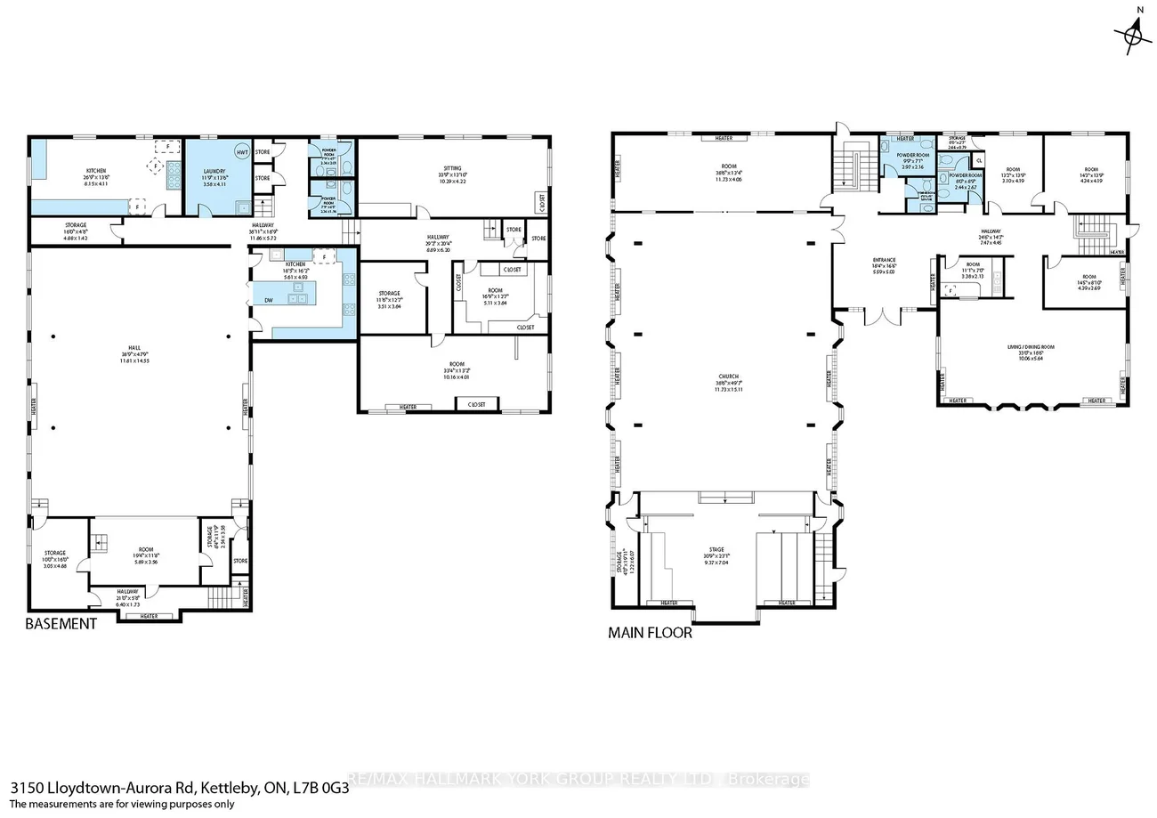
Description

Commercial Commercial Retail For Sale.

Place of Worship with space for a nursery/daycare. The property is situated on 2.94acres of desitable land in King Township within close proximity to Hwy400. Parking for approximately 35-40vehicles. Building total floor area 11554sqft (MPAC). Sanctuary accommodates 150, chapel 50, gym 160, admin office, pastor's office, meeting rooms, fellowship hall, and 2 kitchens. Lower level offers a nursery school, and gym, with plenty of storage space. Vendor is offering the property on an as-is, where-is basis.Floorplan and Matterport interactive virtual tour design attached.

Cross Street: Hwy 400 & Lloydtown Aurora rd.

Key Facts

  • Days on: 12 days
  • Mls Status: Sold Conditional
  • Lot Type: Lot
  • Lot Width: 200.00
  • Parking Spaces: 40
  • Garage Type: None
  • Heat Type: Propane Gas
  • Cooling: No
  • Building Area Total: 11554 Square Feet

Location 3150, Lloydtown, Rural King, King

Search by Neighbourhoods

Kate Naccarato
Sales Representative 416-779-6085