723, Lakeshore, Lakeview, Mississauga, Commercial

MLS® Number W12748344
For Sale   $ 1,245,000
  • 2000 SQFT
Kate Naccarato
Kate Naccarato Sales Representative 416-779-6085
Add to favourites

Description

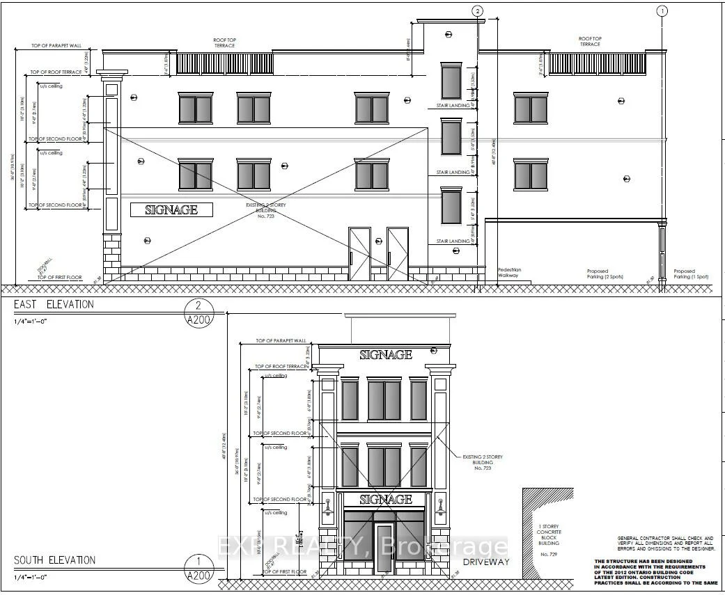
Commercial Investment For Sale.

Shovel-ready mixed-use redevelopment opportunity along the Lakeshore corridor. The existing two-storey building features one retail unit and one residential apartment, offering holding income with clear upside. The property is fully approved to add a third storey and convert to six residential units plus one retail space. Zoning by-law approval, site plan approval, and architectural drawings are all complete. A new owner can pull permits and proceed directly to construction. Further value is created through reduced development charges from the City of Mississauga, available until November 2026, enhancing overall project economics.

Cross Street: Cawthra

Key Facts

  • Days on: 1 days
  • Mls Status: New
  • Lot Type: Lot
  • Lot Width: 25.00
  • Parking Spaces: 4
  • Garage Type: None
  • Heat Type: Gas Forced Air Closed
  • Cooling: Yes
  • Building Area Total: 2000 Square Feet

Location 723, Lakeshore, Lakeview, Mississauga

Search by Neighbourhoods

Kate Naccarato
Sales Representative 416-779-6085