135, City Centre, City Centre, Mississauga, Residential Condo & Other

MLS® Number W12748642
For Sale   $ 15,000,000
  • 6 beds | 
  • 8 baths | 
  • 5000 + SQFT
Kate Naccarato
Kate Naccarato Sales Representative 416-779-6085
Add to favourites

Description

Residential Condo & Other Condo Apartment For Sale.

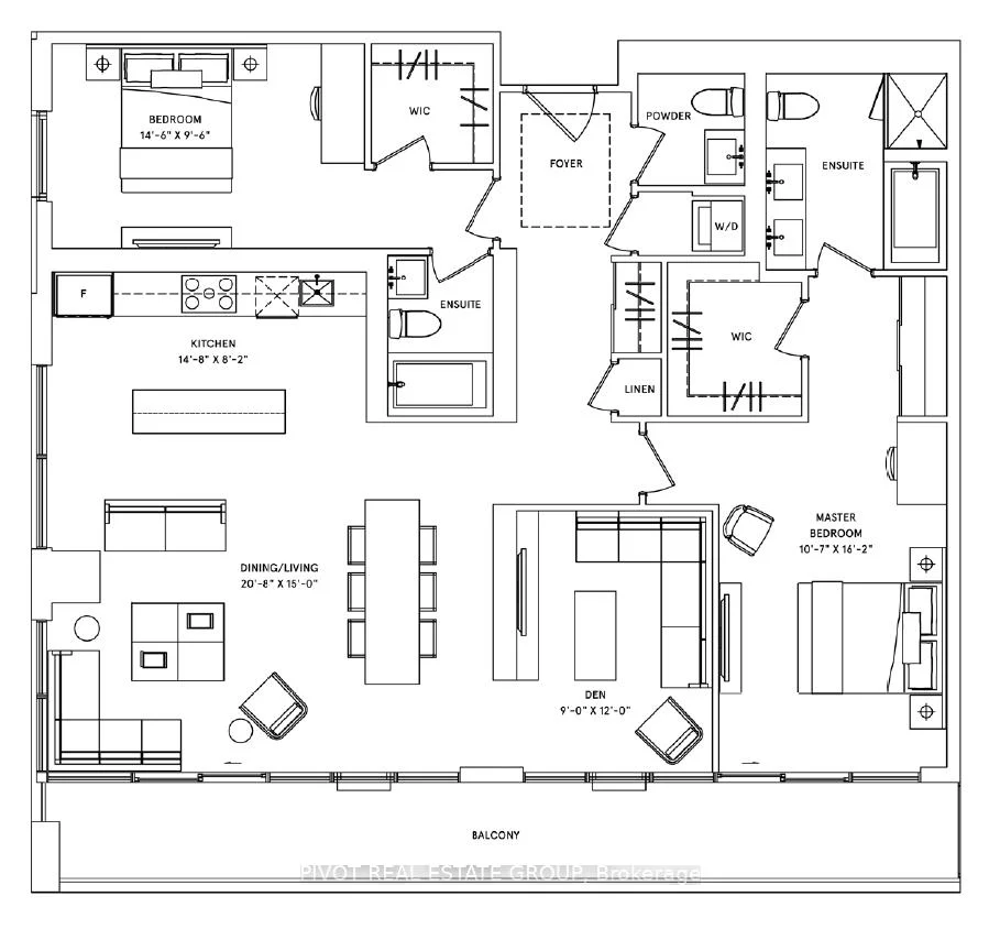
Spectacular One of Kind Penthouse Living at EX3 in the Exchange District, an award-winning master-planned community in the heart of City Centre, Mississauga. Encompassing the entire top floor of the 66-storey tower, the suite offers approximately 7,800 square feet of interior living space and 2,000 square feet of balcony spaces. Windows throughout frame sweeping 360-degree views of downtown Mississauga, views of the Toronto skyline, and Lake Ontario With 5 spacious bedrooms, 6 full bathrooms, 2 powder rooms, and a dedicated home office, this meticulously designed layout delivers exceptional comfort and sophistication. The suite opens into a grand foyer leading to a light-filled great room with multiple seating areas and access to one of two oversized balconies. Ideal for entertaining, the residence features a formal dining room, wine room, and an open-concept chefs kitchen with premium appliances, a massive island, walk-in pantry, and a sunny breakfast nook. A discreet prep kitchen adds further convenience for catering or keeping the main kitchen spotless during gatherings. The primary suite is a private retreat with a serene sitting area, dual walk-in closets, and spa-like his and hers ensuite. Each bedroom features its own ensuite bath and walk-in closet, offering privacy and comfort for family or guests, or for staffing quarters. Additional highlights include a gym room, a media room, two laundry rooms. Situated just steps from Square One Shopping Centre, transit, fine dining, and cultural landmarks, this one-of-a-kind residence offers unmatched scale, exclusivity, and convenience in Mississauga's most vibrant urban hub. Inclusive of 5 Parking Spots & 2 Lockers. Geothermal Heat Source. Images are Artist's Concepts. Taxes not yet assessed.

Laundry Features: In-Suite Laundry

Interior Features: None

Cross Street: Hurontario St & Burnhamthorpe Rd W

Key Facts

  • Days on: 14 days
  • Mls Status: New
  • Bedrooms Total: 6
  • Bedrooms Below Grade: 1
  • Bedrooms Above Grade: 5
  • Den / Family Room: Yes
  • Bathrooms Total Integer: 8
  • Locker: Exclusive
  • Kitchens Total: 2
  • Parking Total: 5
  • Garage Type: Underground
  • Heat Source: Other
  • Heat Type: Forced Air
  • Cooling: Central Air
  • Living Area Range: 5000 + Square Feet

Location 135, City Centre, City Centre, Mississauga

Search by Neighbourhoods

Kate Naccarato
Sales Representative 416-779-6085