88, Vista, Streetsville, Mississauga, Residential Freehold

MLS® Number W12912980
For Sale   $ 1,199,000
  • 4 beds | 
  • 2 baths | 
  • 9029 SQFT
Kate Naccarato
Kate Naccarato Sales Representative 416-779-6085
Add to favourites

Description

Residential Freehold Detached For Sale.

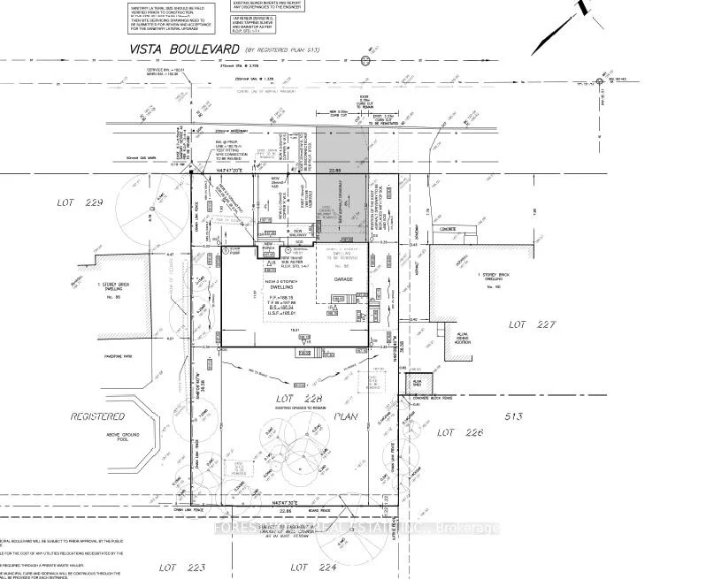
****Skip the Search. Start the Build!!****Rare Find****Largest Lot 75.11 Feet Frontage in A Highly Desired Streetsville! Top Reason to Own This Home is Limitless Possibilities!! Lot Is Flat! No Sidewalks! Envision A Luxurious Estate Or Own a Cozy Bungalow in a Muskoka Like Atmosphere! Mature Pine Trees at The Back of The Lot With All Season Privacy. Location is Unmatched. Stunning Natural View and Steps to Highly Ranked Vista Heights Elementary French Immersion, Streetsville Go Station, Credit Valley Hospital, Shops and Restaurants. No Conservation! It is Perfect for Builders to Create Custom Home. Drawings for Custom House, survey year 2012, Site Plan can be available to the Purchaser Upon Signing Offer. Current bungalow offers 3 bedrooms, 2 full washrooms, separate side entrance to the basement. Hardwood and Ceramic, Carpet Free house. Recent Updates Include Updated Bathroom Main Level, New Windows in the Basement, Newer Roof, Furnace and A/C.** There is possibility of basement in law apartment for the current home. Drawings for basement apartment were prepared and approved by city of Mississauga and Can Be Provided to the Purchaser Upon Signing Offer.

Property Features: Hospital, Public Transit, Rec./Commun.Centre, School Bus Route, Wooded/Treed

Interior Features: Carpet Free, Central Vacuum, In-Law Capability

Cross Street: Thomas Street X Erin Mills Parkway

Direction Faces: South

Key Facts

  • Days on: 0 days
  • Mls Status: New
  • Bedrooms Total: 4
  • Bedrooms Below Grade: 1
  • Bedrooms Above Grade: 3
  • Bathrooms Total Integer: 2
  • Lot Width: 75.11
  • Kitchens Total: 1
  • Parking Total: 4
  • Parking Spaces: 4
  • Garage Type: None
  • Heat Source: Gas
  • Heat Type: Forced Air
  • Cooling: Central Air
  • Lot Size Area: 9029 SquareFeet
  • Living Area Range: 700-1100 Square Feet

Location 88, Vista, Streetsville, Mississauga

Search by Neighbourhoods

Kate Naccarato
Sales Representative 416-779-6085