15, David Eyer, Rural Richmond Hill, Richmond Hill, Residential Condo & Other

MLS® Number N13051682
For Lease   $ 3,000
  • 3 beds | 
  • 3 baths | 
  • 1200-1399 SQFT
Kate Naccarato
Kate Naccarato Sales Representative 416-779-6085
Add to favourites

Description

Residential Condo & Other Condo Townhouse For Lease.

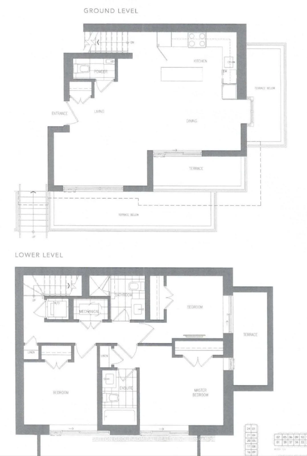
Welcome to this newly built stacked condo townhouse at 15 David Eyer Road #1412 in the highly desirable Rural Richmond Hill community, offering 2 levels of stylish, carpet-free living with approximately 1,296 sq. ft. of thoughtfully designed space. Built in 2024, this modern home features 3 spacious bedrooms, 3 bathrooms, an open-concept layout, contemporary finishes throughout, in-suite laundry, a private terrace, underground parking, and a locker for added convenience. The lease includes high-speed internet, parking, and common elements, while tenants are responsible for heat, hydro, and water. Ideally situated in a prime location close to a plethora of amenities, residents will enjoy easy access to the expansive Richmond Green Sports Centre and Park, offering year-round recreation including skating, soccer, pickleball, playgrounds, picnic areas, and more, with Richmond Green Secondary School and the Richmond Green Library just steps away-making this an exceptional leasing opportunity for those seeking comfort, convenience, and an active lifestyle in one of Richmond Hill's fastest-growing neighbourhoods. The current tenants are scheduled to move out at the end of June, allowing for occupancy as early as June 29th, and 24 hours' notice is required for all showings.

Property Features: Arts Centre, Park, Public Transit, Rec./Commun.Centre, School, Library

Laundry Features: In-Suite Laundry, Laundry Closet

Interior Features: Auto Garage Door Remote, Carpet Free, Countertop Range, Built-In Oven, Water Heater

Cross Street: Bayview Ave & Elgin Mills Rd. E

Key Facts

  • Days on: 1 days
  • Mls Status: New
  • Bedrooms Total: 3
  • Bedrooms Above Grade: 3
  • Bathrooms Total Integer: 3
  • Locker: Owned
  • Locker Level: Room 116
  • Locker Unit: #333
  • Kitchens Total: 1
  • Parking Total: 1
  • Parking Features: Underground
  • Garage Type: Underground
  • Heat Source: Gas
  • Heat Type: Forced Air
  • Cooling: Central Air
  • Living Area Range: 1200-1399 Square Feet

Location 15, David Eyer, Rural Richmond Hill, Richmond Hill

Search by Neighbourhoods

Kate Naccarato
Sales Representative 416-779-6085