Lot 0, Anglin, Jefferson, Richmond Hill, Residential Freehold

MLS® Number N12906444
For Sale   $ 1,800,000
  • 5000 + SQFT
Kate Naccarato
Kate Naccarato Sales Representative 416-779-6085
Add to favourites

Description

Residential Freehold Vacant Land For Sale.

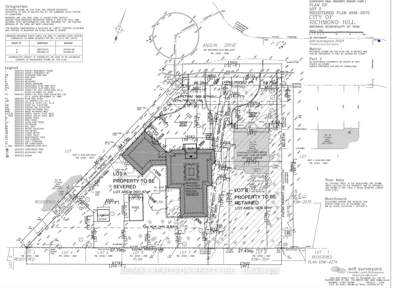
**Attention Builders and Investors***Best Location at Richmond Hill***Pie shape Lot 60ft x 200ft***222ft width at back***Stunning mature trees***located on a cul-de-sac***Can build an over 8000sf property with a three car garage***Ready to build and perfect for any builder, or someone who wants to build their dream home***Will not last Long***Plans available for a custom built home***Ready to apply for builder permit***

Interior Features: None

Cross Street: Yonge/19th

Direction Faces: South

Key Facts

  • Days on: 3 days
  • Mls Status: New
  • Lot Width: 60.28
  • Parking Total: 12
  • Parking Spaces: 6
  • Living Area Range: 5000 + Square Feet

Location Lot 0, Anglin, Jefferson, Richmond Hill

Search by Neighbourhoods

Kate Naccarato
Sales Representative 416-779-6085