57, Westwood, Broadview North, Toronto, Commercial

MLS® Number E12632770
For Sale   $ 3,535,723
    Kate Naccarato
    Kate Naccarato Sales Representative 416-779-6085
    Add to favourites

    Description

    Commercial Investment For Sale.

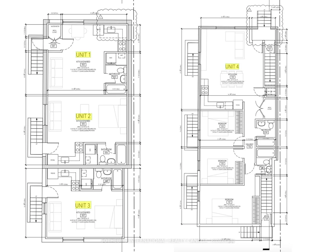
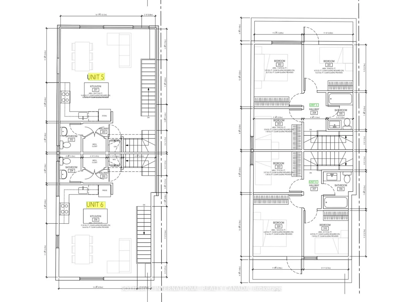
    Pre-construction purpose-built rental development in East York. 57 Westwood Ave is a fully designed seven-plex (six-unit detached multiplex with a self-contained rear garden suite), offered as a fixed-price construction opportunity conditional on the builder obtaining Development Permit and Building Permit approval. The proposed building consists of a three storey plus basement configuration with a mix of studio and larger residential units, together with a separate two-bedroom garden suite located at the rear of the property. The project has been designed with energy-efficient construction and CMHC MLI Select underwriting considerations in mind, providing a potential pathway to insured take-out financing upon stabilization, subject to CMHC program requirements, scoring, debt service coverage, and lender approval. No representation or warranty is made regarding CMHC eligibility or financing terms. Located in a well-established East York neighbourhood with strong rental fundamentals, proximity to transit, parks, schools, and local amenities. Intended for build-to-hold investors seeking long-term rental income and cost certainty through a fixed-price construction structure. Architectural drawings and additional information available upon request. Appointment required before walking the site.

    Cross Street: Broadview/Mortimer

    Key Facts

    • Days on: 0 days
    • Mls Status: New
    • Lot Type: Lot
    • Lot Width: 30.00
    • Garage Type: None
    • Heat Type: Gas Forced Air Open
    • Cooling: Yes

    Location 57, Westwood, Broadview North, Toronto

    Search by Neighbourhoods

    Kate Naccarato
    Sales Representative 416-779-6085