1415, Gerrard, Greenwood-Coxwell, Toronto, Commercial

MLS® Number E12890406
For Sale   $ 4,295,000
  • 7260 SQFT
Kate Naccarato
Kate Naccarato Sales Representative 416-779-6085
Add to favourites

Description

Commercial Commercial Retail For Sale.

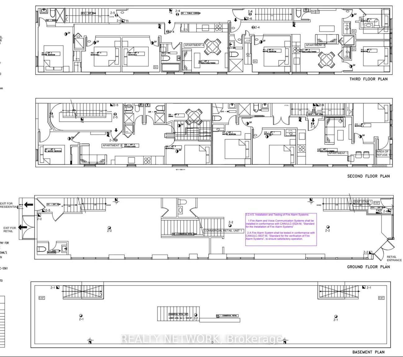
Turn-key mixed-use investment opportunity in prime downtown Toronto (1 Commercial + 5 Residential). Fully renovated building featuring a large main-floor commercial unit with full basement plus 5 high-end residential apartments above. Situated on a high-exposure corner lot offering excellent street presence. With over 7,000 sq ft of leased space with three on-site parking spaces, this a low-maintenance, cash flowing asset ideal for investors seeking a stable mixed-use property in a highly desirable urban location. Simply acquire and enjoy this fully upgraded, income-producing building. The seller is willing to provide a 75% Vendor Take Back (VTB) mortgage at 6.89% fully open for 2 years to qualified buyers. 3 parking spots are for the main floor commercial tenant which they made into a patio.

Community Features: Public Transit

Cross Street: Hiawatha Rd

Key Facts

  • Days on: 54 days
  • Mls Status: New
  • Lot Type: Lot
  • Lot Width: 17.53
  • Garage Type: None
  • Heat Type: Other
  • Cooling: Yes
  • Building Area Total: 7260 Square Feet
  • Retail Area: 3947 Sq Ft

Location 1415, Gerrard, Greenwood-Coxwell, Toronto

Search by Neighbourhoods

Kate Naccarato
Sales Representative 416-779-6085