157, Toryork, Humber Summit, Toronto, Commercial

MLS® Number W12750370
For Sale   $ 11,500,000
  • 27988 SQFT
Kate Naccarato
Kate Naccarato Sales Representative 416-779-6085
Add to favourites

Description

Commercial Industrial For Sale.

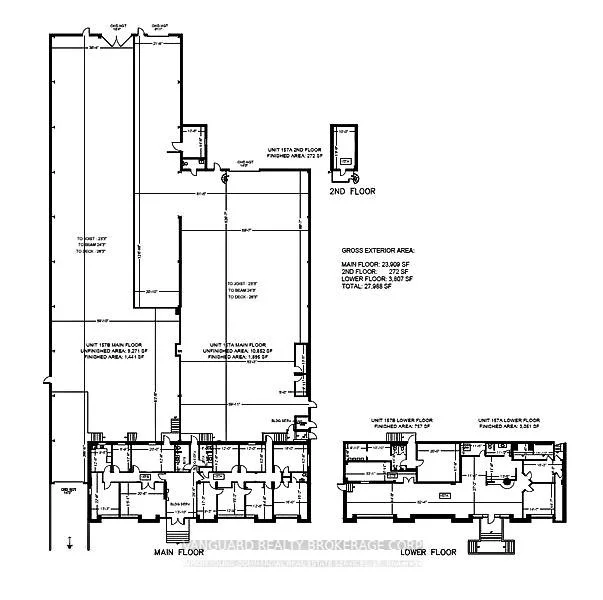
Outstanding opportunity to acquire a 27,988 SF freestanding industrial building on 1.52 acres, including approx. 0.40 acres of approved excess land for expansion. Features 24' clear height, three drive-in doors, one truck-level door, two five-ton cranes, and heavy power. A rare, high-function asset with immediate usability and future upside.

Cross Street: Weston Road & Finch Ave W

Key Facts

  • Days on: 77 days
  • Mls Status: New
  • Lot Type: Lot
  • Lot Width: 348.96
  • Garage Type: Outside/Surface
  • Heat Type: Gas Forced Air Open
  • Cooling: Partial
  • Building Area Total: 27988 Square Feet
  • Lot Size Area: 1 Acres

Location 157, Toryork, Humber Summit, Toronto

Search by Neighbourhoods

Kate Naccarato
Sales Representative 416-779-6085