21, Amiens, West Hill, Toronto, Residential Freehold

MLS® Number E12750234
For Sale   $ 790,000
  • < 700 SQFT
Kate Naccarato
Kate Naccarato Sales Representative 416-779-6085
Add to favourites

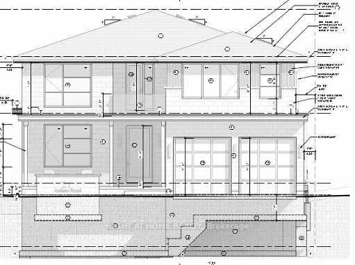
Description

Residential Freehold Vacant Land For Sale.

Attention builders, Construction project of a 3857 sq ft, 2 storey, 4-bedroom house. Foundation completed. Approved Drawings available to continue the project. Sold Under Power Of Sale Therefore As Is/Where Is Without Any Warranties From The Seller.

Interior Features: None

Cross Street: Morningside/Kingston Rd

Direction Faces: East

Key Facts

  • Days on: 1 days
  • Mls Status: New
  • Lot Width: 50.00
  • Garage Type: None
  • Heat Source: Gas
  • Heat Type: Other
  • Cooling: None
  • Living Area Range: < 700 Square Feet

Location 21, Amiens, West Hill, Toronto

Search by Neighbourhoods

Kate Naccarato
Sales Representative 416-779-6085