331, Cityview, Vellore Village, Vaughan, Commercial

MLS® Number N12407350
For Lease   $ 23
  • 6216 SQFT
Kate Naccarato
Kate Naccarato Sales Representative 416-779-6085
Add to favourites

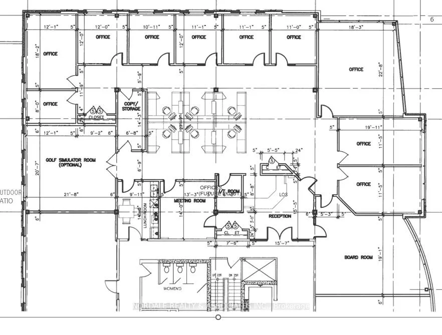
Description

Commercial Office For Lease.

A Signature Head Office Location, Prominent Exposure on Highway #400 Serves as Both a Beacon to the Business Community and a Daily Advertisement to Thousands of Commuters. Elevate your brand, Access To All Major Transportation Routes, High-End Finishes: Professional Interiors With Premium Materials and Modern, Elegant Design Elements. Inviting Common Areas: Reception, Lounge Spaces, and Kitchen Facilities to Support Your Needs, Ample Onsite Parking for Staff and Visitors

Cross Street: Highway 400 & Major Mackenzie

Key Facts

  • Days on: 4 days
  • Mls Status: New
  • Board Property Type: Com
  • Lot Type: Building
  • Garage Type: Outside/Surface
  • Heat Type: Gas Forced Air Closed
  • Cooling: Yes
  • Building Area Total: 6216 Square Feet

Location 331, Cityview, Vellore Village, Vaughan

Search by Neighbourhoods

Kate Naccarato
Sales Representative 416-779-6085